Проект «Австрия» — это современный, быстровозводимый и энергосберегающий дом от «Строй Дом UA Харьков.
Строительство домов в Харькове и регионе — это основное направление компании «Строй Дом UA».  Мы готовы предложить Вам различные энергосберегающие технологии строительства на Ваш выбор. Это может быть каркасный дом из сип панелей по канадской технологии. Так же, это может быть монолитный дом с применением несъемной опалубки

Больше информации о энергоэффективной технологии строительства «Комблок» Вы найдете по ссылке. «Что такое технология «Термодом» и «Комблок» (комбинированный блок)?»

 Выбор всегда за Вами. Но какую бы из энергосберегающих технологий Вы не выбрали, с нами Вы можете построить теплый и надежный дом класса энергоэффективности «А+» А при Вашем желании мы спроектируем и построим дом класса пассивный дом. Больше информации о том, что такое пассивный дом, Вы можете получить из небольшого видео.

Австрия 142 м.кв.

Австрия 142 (3)
Австрия 142 (6)
Австрия 142 (1)
Австрия 142 (2)
Австрия 142 (4)
Австрия 142 (5)
Австрия 142 (3) Австрия 142 (6) Австрия 142 (1) Австрия 142 (2) Австрия 142 (4) Австрия 142 (5)

Описание проекта.

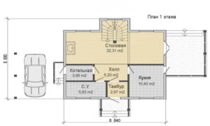
А теперь немного о самом проекте «Австрия» Оригинальность, простор, много света и прямые линии характеризуют этот проект каркасного дома из сип панелей.

Проект «Австрия» — это энергоэффективный, надежный и компактный проект. Под выносной кровлей найдет себе защиту Ваш автомобиль. А Вы сможете насладится чашкой чая на открытой террасе в ясный день.

Комплектация проекта.

Стены и кровля этого пассивного дома выполнены из сип панелей, а фундамент – это УШП (утепленная шведская плита)(Больше информации о этом и других видах фундаментах, применимых в малоэтажном строительстве Вы найдете в рубрике: «Фундамент энергоэффективного дома.»)
Однако мы готовы адаптировать этот проект и под другую энергоэффективную технологию. К примеру, этот дом мы готовы построить по технологии «Термодом», о которой мы упоминали ранее. Прогрессивные технологии строительства, примененные в этом проекте, позволят Вам значительно экономить на отоплении и кондиционировании этого дома.
Применяя современные технологии строительства мы соблюдаем пять основных принципов пассивного дома от д-ра. Вольфганга Файста, который впоследствии стал основателем «Института пассивного дома» (Passive House Institute) в городе Дармштадт (Германия)

Стоимость проекта.

В базовой комплектации этот проект будет стоить от 610.000 грн. на 12.05.2016г. (В стоимость не включены навесные конструкции)
Если Вас интересует стоимость строительства по канадской технологии в различных комплектациях, ознакомьтесь с информацией в статье. «Реальная стоимость строительства жилого дома в различных комплектациях от «Строй Дом UA»
В заключении представляем Вам видео отчет с одного из наших объектов.

Приглашаем Вас посетить и подписаться на наш «YouTube» канал по ссылке. «YouTube» канал от «Строй Дом UA»

С уважением, команда «Строй Дом UA»

Рубрики: Проекты

Едуард Володимирович

Дипломований інженер будівельник, архітектор малоповерхових енергозберігаючих будівель та незалежний сертифікований енергоаудитор України. У будівельному бізнесі понад 25 років. Люблю та вмію будувати.